
Tischlermeister
& Restaurator
Siemensstr. 12
46342 Velen-Ramsdorf
Mobil: 0171-1432859
Tel.: 02863-760217
Fax: 02863-760218
www.tischlerei-schroer.de
info@tischlerei-schroer.de
Laden Sie hier unsere digitale Visitenkarte als Kontakt (für Outlook oder Thunderbird) herunter
Standort des Restaurierungsmöbels
Adressen und Ansprechpartner
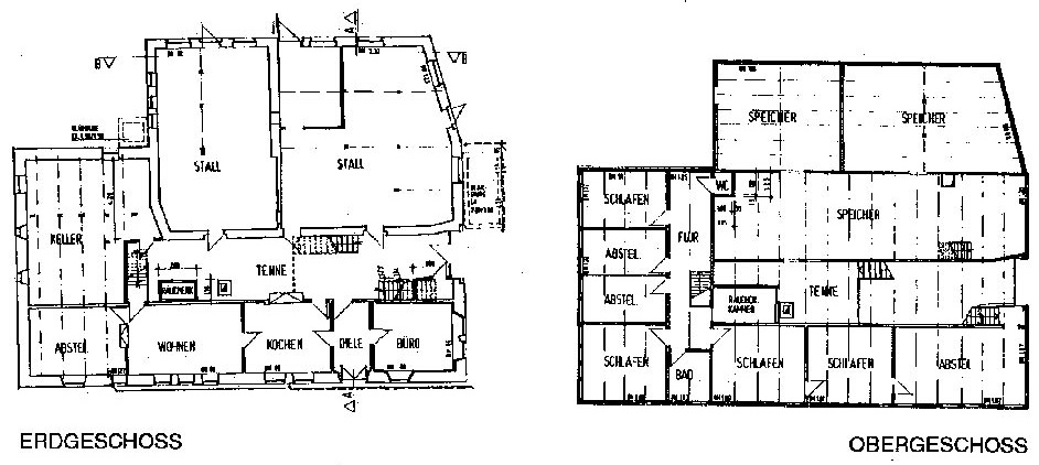
Raumstruktur des Steertschultenhofes

Raumstruktur des Steertschultenhofes Quelle: Untere Denkmalbehörde der Gemeinde Eslohe
Raumstruktur des Steertschultenhofes
Im Bereich der Wirtschaftsdiele zeigen die beiden Dielenseitenwände ganz unterschiedliche Aufteilungen. Die rechte Dielenseitenwand ist nur im Bereich des oberen Stockwerkes (allerdings in versetzter Lage) erhalten. Hier sind sicher 11 durch Riegel mit Ausfachungen erschlossene Gefache nachzuweisen, während zwei Gefache Türöffnungen zeigen, die wohl mit Leitern erreichbar waren. Das obere Stockwerk des rechten Seitenschiffes war durch Querwände mit Fußstrebenaussteifung in zwei 4- und zwei 3- Gefach tiefe Räume unterteilt. Alle diese Räume verfügten über Fenster im Vordergiebel bzw. in der rechten Traufwand. Die beiden hinteren Räume können nur vom Kammerfach aus erschlossen gewesen sein. Im unteren Teil dieses Seitenschiffes sind die ursprünglichen Stallungen für das Rindvieh zu lokalisieren.
(Quelle: Westfälisches Amt für Denkmalpflege, Münster, Inventarisation / Bauforschung 1996)
Das breitere linke Seitenschiff war im Bereich des oberen Stockwerks zur Diele hin mittels Riegeln, Fußstreben und Ausfachungen vollständig geschlossen. Die hier befindlichen Wohnräume - darunter vor allem der im vorderen Bereich gelegene Saal - waren erreichbar über eine (heute nicht mehr vorhandene) Treppe, die quer zum First im Seitenschiff selbst angeordnet war, und die zur Wirtschaftsdiele hin mittels einer Tür im siebten Gebinde abschloß. Der vor dieser Treppe befindliche Erdgeschoß-Raum des linken Seitenschiffes nahm nach der örtlichen Überlieferung den Pferdestall auf, was durch den Baubefund gestützt wird: Hier öffnet sich das linke Seitenschiff über 2 ½ Gefache, wobei die seitlichen Ständer mit dem Schwell-Rähm durch kurze Kopfbänder verbunden waren. Hier hat man sich einen Futtertrog vorzustellen. Im anschließenden Gefach ist eine Tür als Zugang zum Pferdestall sicher nachzuweisen. Auffallend ist schließlich das Fehlen jeglicher Verriegelung im zehnten Gefach des unteren Stockwerkes; es ist zu vermuten, daß in diesem ursprünglich wohl vermauerten Gefach sich die Heizöffnung für einen Hinterladerofen in der Stube befand. Unweit davon wird wahrscheinlich die einstige Heizstelle auf der Wirtschaftsdiele zu lokalisieren sein.
(Quelle: Westfälisches Amt für Denkmalpflege, Münster, Inventarisation / Bauforschung 1996)

Innenansicht Steertschultenhof von Diele zur linken Seite Foto: D. Günther, April 1999
Ausstattung des Steertschultenhofes
Das obere Stockwerk weist als Prunkstück die Wandvertäfelung des straßenseitigen, sich über 6 Gefache hinziehenden Saales auf. Im daran anschließenden Gefach befand sich ursprünglich die Treppe, beidseitig von Wänden eingefaßt. Die Tür zwischen Treppenbereich und Saal entstand - wie insgesamt 7 weitere Füllungstüren im Bereich des Seitenschiffes und des Kammerfaches - der Zeit um 1800. Zwei dieser Türen zeichnen sich durch Blattwerk in den Ecken der Füllungen aus.
Die genannten hölzernen Ausstattungsstücke lassen - ebenso wie die Wandputze in den Wohnräumen des linken Dielenschiffes und der Kammerfaches - Farbfassungen verschiedener Zeitschichten vermuten.

Wandvertäfelung im Obergeschoß Foto: Dipl. Ing. E. Berg, 1998
Elemente der älteren Ausstattung sind nur im Bereich des linken Seitenschiffes und des oberen Stockwerkes des Kammerfaches erhalten, während die Einrichtung der Diele und des rechten Seitenschiffes kaum älter als 80 Jahre ist.
Im linken Seitenschiff befindet sich als Zugang zur heutigen Küche ein Türrahmen der Zeit um 1800. Wohl dem früheren 18. Jahrhundert gehört dagegen der Türrahmen zwischen der heutigen Küche und der dahinter gelegenen Stube an, wo sich wiederum eine Wandvertäfelung der Zeit um 1800 erhalten hat. Hier befindet sich in der Wand zur Diele eine vermutlich ebenfalls der Zeit um 1800 angehörende Kaminfassung.

Wandschrank im Erdgeschoß Foto: D. Günther, 1999
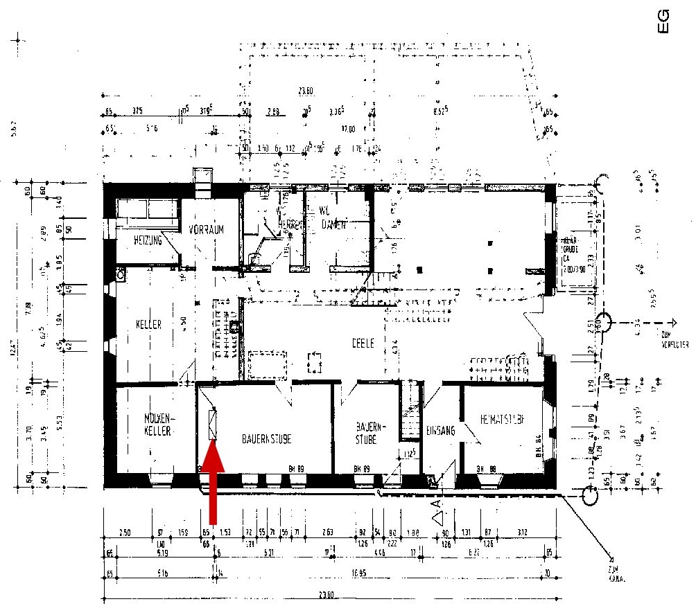
Lokalisierung des Vitrinenschrankes

Die Schrankwand steht im Raum 1.6 und 1.7 des Steertschultenhofs in Eslohe-Cobbenrode im Sauerland.
Der Raum 1.6/1.7 hat einen Boden aus neuerem Beton, die rechte Wand besteht aus Gittersteinen und ist nicht verputzt, diese Wand hat auf der rechten Seite einen Türrahmen der zur Diele führt. Die gegenüberliegende Wand ist die Außenwand, welche verputzt ist und zwei Fenster besitzt. Die Wand gegenüber der Einbauwand ist ebenfalls verputzt und füllt ein Gefach des Hauses aus.
Die Schrankwand, die in einem Gefach eingebaut wurde, ist ca. 3,5 Meter breit und kann grob in drei Teile gegliedert werden.
Der linke, ca. 1,5 Meter breite Teil, ist eine Art Holzvertäfelung mit Kassettenfüllungen, in der sich zwei links angeschlagene Türen befinden.
Der mittlere Teil ist etwa 1,2 Meter breit und besteht aus einem Vitrinenschrank, welcher mein Untersuchungsobjekt (Abbildung Foto unten) ist. Der Vitrinenschrank besitzt vier Türen. Die oberen etwas kleinere geschwungenen Türen sind Glastüren mit ebenfalls waagerechten geschwungenen Sprossen und jeweils einer aufrechten geraden Sprosse. Dahinter befindet sich ein Einlegeboden. Die unteren Türen sind auf Rahmen und Füllung gearbeitet. Diese haben jeweils mittig auf der Füllung einen aufgesetzten Stern. Dahinter befinden sich zwei Einlegeböden. Die Türen sind von einem ca. sieben Zentimeter breiten waagerechten Profil unterteilt. An der linken und rechten Seite ist ein ca. zwölf Zentimeter breites Profil aufgesetzt.
Der rechte Teil ist etwa 80 Zentimeter breit und besteht aus einer Zimmertüre, die auf Rahmen und Füllung gearbeitet ist.
Hinter der kompletten Schrankwand befindet sich ein schmaler Gang (Raum 1.7), der durch die auf der rechten Seite befindlichen Tür zu betreten ist.
Wegbeschreibung und Lage
Der Steertschultenhof liegt im sauerländischen Kreis Meschede an der B 55 (Olper Straße 3) am Dorfrand von Cobbenrode in der Gemeinde Eslohe.
Geschichte des Steertschultenhofes

Steertschultenhofes im frühem 20. Jh. Quelle: Heimat und Förderverein Cobbenrode
Bei dem Fachwerkbau von 1769 handelt es sich um das Haupthaus des Stert-Schultenhofes, der 1799 zu den nur 17 vorhandenen Wohnhäusern gehörte. Darüber heißt es 1625: „Schulte zum Sterte, hat Probstlehn“. Der großbäuerliche Hof, in den Kopfschatzregistern des 18. Jahrhunderts als einziger Vollspänner neben vier Halbspännern und einem Kötter genannt, war also ein Lehen des Stiftes Meschede. Am Dorfrand von Coppenrode gelegen, gehörte der Hof kirchlich bis zur Umpfarrung 1897 nicht zum Kirchspiel Coppenrode, sondern zum Kirchspiel Eslohe. Der Hof nahm also nicht nur aufgrund seiner Lage und seiner Größe, sondern auch aufgrund seiner Zugehörigkeit immer eine Sonderstellung in Dorf Coppenrode ein.
Zu dieser historischen Bedeutung tritt auch die herausragende bauliche Ausgestaltung des erhaltenen Haupthauses. Nicht erst seit der Zerstörung aller weiterer älterer Fachwerkbauten im Zuge der 1962 begonnenen sogenannten Dorfkernsanierung gehört der Fachwerkbau des Steerthofes zu den herausragenden bäuerlichen Kulturdenkmalen des Hochsauerlandes. Dies verschaffte dem Gebäude Eingang nicht nur in die Ortsgeschichtliche, sondern darüber hinaus in die allgemein westfälische hauskundliche Literatur. Dazu trug auch bei der überdurchschnittlich gute Erhaltungszustand in bauhistorischer Hinsicht, der im Vorfeld und im Verlauf der jüngsten Baumaßnahmen eine weitgehende Rekonstruktion des historischen Zustandes ermöglichte.
Das Gebäude wurde 1769 überwiegend aus Fachwerk errichtet - einzig die Umfassungswände sind im Bereich des Erdgeschosses wohl von Beginn in Bruchsteinmauerwerk aufgeführt worden. Das Fachwerk zeigt die zeittypischen Konstruktionsdetails der Region: regelmäßige Gebinde-Abstände, Aussteifung durch Fußstreben, sowie in besonders qualitätsvoller Weise den in der zweiten Hälfte des 18. Jh. üblichen Schmuckreichtums insbesondere des vorderen Giebels mit profilierten Vorkrangungszonen des oberen Stockwerkes und des Giebeldreieckes, Schmuckhölzer in der Giebelspitze, reiche Inschriften sowie Schnitzereien an den Eck- und Torständen.
Typologisch handelt es sich um ein längsaufgeschlossenenes niederdeutsches Hallenhaus, wobei das hier bauzeitliche Kammerfach von vier Gefachen die Sonderstellung des Hofes unterstreicht. Die Seitenwände der außermittig angeordneten, haushohen Wirtschaftsdiele erstrecken sich in ganzer Hauslänge, d. h., sie gliedern auch den Grundriß des Kammerfaches dreischiffig. Von den Seitenschiffen des Wirtschaftsteiles diente das schmalere, rechte im unteren Teil in ganzer Länge als Stallung, während darüber Wirtschaftsbühne und vielleicht Gesindekammern angelegt waren. Das breitere linke Seitenschiff diente dagegen nur im vordersten Teil als (Pferde-)Stall, nahm jedoch in den übrigen Bereichen des Erd- und Obergeschosses Wohnräume auf. Der Küchenbereich lag (unabgeteilt) am hinteren Ende der Wirtschaftsdiele. Die Wohnräume des linken Seitenschiffes zeichnen sich ebenso wie die Räumlichkeiten des Kammerfaches im Bereich des oberen Stockwerkes (unten befanden sich Keller) durch eine außerordentlich qualitätvolle Ausstattung der Bauzeit bzw. einer Umbauphase des frühen 19. Jh. aus. Hervorzuheben ist die unmittelbar hinter dem Wirtschaftsgiebel angeordnete Stube mir ihrer z. T. barocken Vertäfelung.
Diese Stube dürfte im Zusammenhang stehen mit der teilweisen Nutzung des Hauses als Vorspann-Station für den Verkehr auf der nach 1815 neu trassierten und unmittelbar am Haus vorbeiführenden Staatschaussee Minden-Koblenz; für diese Nutzung wurde nicht nur ein umfangreicher separater Pferdestall vorgehalten, sondern wahrscheinlich auch die gesamte Stube als Gastraum genutzt.
(Quelle: Westfälisches Amt für Denkmalpflege, Münster, Inventarisation / Bauforschung 1996)

Barocke Vertäfelung Foto: Dipl. Ing. E. Berg, 1998
Baustruktur des Steertschultenhofes
|
Es handelt sich um das 1769 errichtete Haupthaus einer größeren Hofanlage, die außerhalb des eigentlichen Ortskernes Cobbenrodes gelegen ist. Von den umfangreichen Nebengebäuden des 18. und 19. Jahrhunderts ist nichts mehr vorhanden, die kleinen heutigen Nebengebäude (bruchsteinerne Remise, fachwerkene Werkstatt) stammen wie auch die Einfriedung des großen Gartengrundstückes aus dem späteren 19. Jahrhundert. Die Umfassungswände bestanden dagegen ursprünglich ausschließlich aus Fachwerk. Die beiden steilen Giebeldreiecke zeigten ursprünglich Fachwerk, wobei der Vordergiebel durch zweifache Vorkragung und Schnitzereien besonders prächtig gestaltet ist. Am rückwärtigen Giebeldreieck wurden nachträglich die Ausfachungen entfernt und durch eine Verbretterung ersetzt.
|
|
Das Hausgerüst ist aus insgesamt 21 Gebinden zusammengefügt. Es handelt sich um ein voll ausgebildetes Vierständer-Gerüst, dessen Dachbalken den Rähmen der Außenwände, sowie der beiden in ganzer Hauslänge durchlaufenden Dielenseitenwände aufliegen. An den Außenwänden gliedert jeweils ein doppelt genagelter Riegel die Gefache. Kräftige Fußstreben – an den Traufwände regelhaft
ergänzt zur Figur des wilden Mannes - dienen der Aussteilung. Ihre Anordung in den Wandgefügen verweist auf dahinter original angeordnete Trennwände.

Am Vordergiebel kragt das fachwerkene obere Stockwerk gegenüber dem Mauerwerk des Erdgeschosses über einem Stichgebälk vor, was sich hier - wie schon erwähnt - im Bereich des Giebeldreieckes wiederholt. Balkenköpfe, Füllhölzer und Eckständer sind beschnitzt, alle Schwellen von Inschriften überzogen.
Die beiden Dielenseitenwände sind jeweils stöckig abgezimmert, wobei ein kräftiges horizontales Holz gleichzeitig als Rähm des unteren und als Schwelle des oberen Stockwerkes dient. Die Ständer sind oben und unten jeweils doppelt genagelt, umsteigende Fußstreben sind nur in geringer Zahl vorhanden. Die die Wirtschaftsdiele überspannende Dachbalkenlage bleibt hier - wie zeitgleich häufig bei Sauerländer Hallenhäusern zu beobachten - ohne Kopfbandaussteilung. Die Dielenseitenwände sind im oberen Bereich fast durchgängig durch jeweils einen Riegel geteilt, im unteren Bereich sind die Verhältnisse derzeit noch nicht eindeutig zu klären.
(Quelle: Westfälisches Amt für Denkmalpflege, Münster, Inventarisation / Bauforschung 1996)
Zur Kategorie Möbelrestaurierung
Zurück zu Restaurierungsbeispiel: Antiker Vitrinenschrank
Weiter zu Analyse des Schrankes